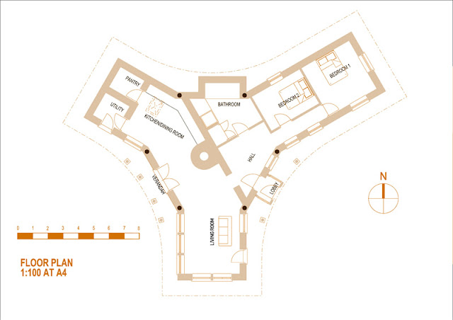
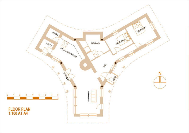
We are in the throes of designing our dream hovel, to be created somewhere in deepest Wales, from timber and strawbale. It’s really hard when faced with a blank canvas and a tiny budget, but here is our creation, which will be a timber framed affair with strawbale walls and a living roof. Any readers who just happen to be disposing of their double glazing, call me before it goes in a skip….
And here is the floor plan. The elevation above is a view from the South, looking at the end of the living room. Exciting stuff, although it is hard to imagine any dwelling cosier than the truck-house.

